Leitungspläne EIB-Verkabelung und Angebot

 

Zusatzbemerkung 02.05.2004: Alle eingezeichneten Funktionalitäten wurden bei uns umgesetzt, lediglich die Positionierung von "Multimedia" - und einigen Steckdosen wurde nochmals geändert. Anfang März 2004 erhielten wir zu Revisionszwecken von Fa. Schnell die Leitungs- und Schaltpläne sowie die Messprotokolle aller gemessenen Leitungen (Strom, EIB, TV, Erdung). Da derzeit kein Scanner zur Verfügung steht, werden diese Pläne später veröffentlicht. Um allen bisherigen und künftigen Anfragen nach unserer ETS entgegenzuwirken: Wir veröffentlichen viel, aber das PAR-, bzw. PR2-File unserer EIB-Steuerung werden wir nicht an Dritte weitergeben.  

 

Hier liegt das komplette Angebot als PDF-Datei (1.1 MB), die Abschlussrechnung, in der nochmals alle Positionen aufgeführt sind, wird ebenfalls zu gegebener Zeit nachgereicht. Entstandene Kosten sind unter Kostenverfolgung nachvollziehbar. 

 

Nachfolgende Pläne wurden von der Fa. Schnell in Neuenstein gemäß unseren Vorgaben und Anforderungen für unser Passivenergiehaus erstellt.

Wir danken Herrn Peter Sperlich für die Vermittlung und Beratung. Weitere Informationen zu EIB finden sich unter www.eib-home.de.

 

Bitte beachten Sie die Beschreibungen zu den Plänen und das unten stehende Angebot, dem Sie zahlreiche Details entnehmen können. Wir sind zwar sehr von diesem Konzept überzeugt, doch gibt es nichts, was man nicht noch besser machen könnte. 

 

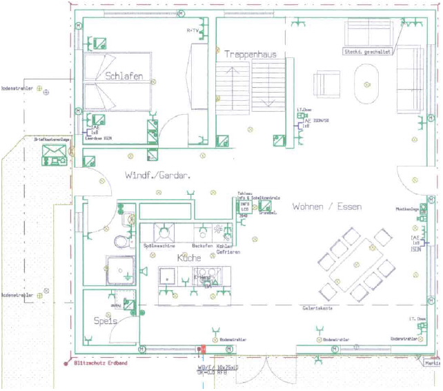
EIB-Verkabelung des Erdgeschosses.

Erstellt von Elektro Schnell, Neuenstein.

Beschreibung: Das Schlafzimmer im EG wird primär als Kinderzimmer oder Gästezimmer, ggf. auch als Hauswirtschaftsraum genutzt werden. Für den Notfall wird dies das Schlafzimmer.

An jedem Fenster ist ein M für Motor eingezeichnet. Hier wird für eine evtl. spätere Verwendung auf jeden Fall ein Stromkabel hingelegt (automatische Rolladensteuerung). Im Erdgeschoss wird eine Lautsprecherverkabelung vorgenommen, dass keine Boxenkabel durch den Raum gelegt werden müssen. Die Anzahl der Steckdosen ist - bis auf die Küche - ausreichend. Im Bereich des Fernsehers/Stereoanlage wird im Medienschrank mit einer Stromleiste inkl. zusätzlichem Überspannungsschutz gearbeitet. Die Festlegung auf 5 oder mehr Dosen hierfür an einer Stelle ist zu unflexibel. Da bestehende Steckdosen leicht in der Menge erweitert werden können (Hebelstein, Putz im EG, keine Tapeten). Die Steckdosen im Außenbereich sind abschaltbar. 

 

EIB-Verkabelung des Untergeschoss.

Erstellt von Elektro Schnell, Neuenstein

Das Büro im UG ist Ausbaureserve, wird möglicherweise erst nach Jahren sinnvoll genutzt und dann ausgebaut. Verkabelung erfolgt jetzt erst in Aufputzversion, Steckdosen nur das notwendigste. Der Technikraum verfügt wie der gesamte Keller über eine leicht erweiterbare Aufputzinstallation zum Schaltschrank hinter der "Waschküchentüre", also leicht neuen Erfordernissen anzupassen. 

Stand 05/2004 wurde im Büro zusätzliche CAT- und Stromverkabelung eingezogen, da hier mein Chaos-Büro Platz gefunden hat. Die umgesetztem Funktionalitäten im Technikraum werden separat beschrieben.

EIB-Verkabelung des Dachgeschosses.

Erstellt von Elektro Schnell, Neuenstein

Im DG werden im Kinderzimmer und Arbeitszimmer viele Dosen blind mit den angegebenen Funktionen, also Kabel angefahren. Die gesamte Installation erfolgt als Sternverkabelung, insbesondere bei ISDN/RJ45 Kabel, welche als Sternknoten im UG enden, Stromkabel gehen im Stern zum Unterverteiler. Als ISDN Kabel wird 8-adriges 600MHz-RJ45-Kabel verwendet um jederzeit alle Funktionen umsetzen zu können. Im Homeofficebereich wird die Computeranlage ebenfalls wieder an eine separate Stromleiste angeschlossen. Mehr Steckdosen vorzusehen ist nicht sinnvoll, da dieser Raum auch ins UG verlegbar ist (wenn oben zusätzliches Kinderzimmer notwendig wird).

EIB-Verkabelung des Erdgeschosses, der Garage und der Außenanlagen.

Erstellt von Elektro Schnell, Neuenstein

Die Türsprechfunktion ist mit der Telefonanlage koppelbar. Beachtet werden soll im untenstehenden Angebot, dass an alles gedacht wurde. So enthält das Angebot die Satellitenanlage, die Telefonanlage, die Verkabelung der Garage und der Außenanlagen, also viele Positionen, die leicht vergessen werden.

Ebenfalls soll Beachtung finden, dass bereits zahlreiche Lampen (Bodenlampen, Strahler, Niedervoltsysteme) mit eingeplant wurden, die ich bisher in anderen Angeboten (nicht für unser Haus) nie fand.

EIB-Verkabelung des Erdgeschosses, der Garage und der Außenanlagen.

Erstellt von Elektro Schnell, Neuenstein

 

Hier liegt das komplette Angebot als PDF-Datei (1.1 MB)

 

 

 

www.bauweise.net